Ningbo Center Lan Yuan flat floor apartment
Ningbo Center - Lanyuan flat floor apartment case
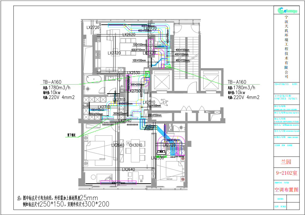
Project area: 130 square meters inside
Configuration: Two Eckebev indoor climate systems are used. Due to the height limit, the floor heating is not installed, and it is still heated by all air in winter. The equipment uses the space of the cabinet as the installation location of the two inner machines, which is convenient for subsequent replacement and maintenance of the filter element.
Case features: The unit belongs to the improved type of just need room, the set area of 130 square, the original unit plan to use the conventional 1 drag 6 water dispenser double supply. The building is only 2.5 meters high.
Through the ingenious design of the Eckebev design team, the design of the whole air system of the house is perfectly solved by using 2 A160 devices without affecting the height of the building.





Prev:Ningbo international village reconstruction villa
Next:The Case of the Villa of the Begonia
