中文
ENGLISH
中文
菜单
品牌
产品
系统
新闻
案例
联系
宁波中心兰园平层公寓
宁波中心-兰园平层公寓案例
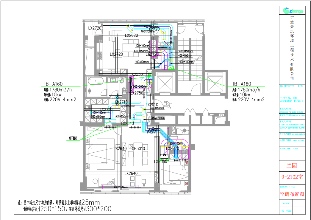
项目面积:套内130平
配置:采用2台埃珂贝夫室内气候系统,由于层高限制,地暖就没有安装,冬季依然通过全空气制热。设备利用柜体的空间,作为两台内机的安装位,便于后续更换滤芯和维护。
案例特点:该户型属于改善型的刚需房,套内面积130平,原本户型计划采用常规1拖6的水机二联供。建筑粱下高度只有2.5米。
经过埃珂贝夫设计团队的巧妙设计,完美在不影响建筑层高的情况下,采用2台A160设备,完美解决了该户型的全空气系统设计。
上一个:
宁波国际村翻建别墅
下一个:
海棠府别墅案例